Vente Maison-Villa -

510 000 € *
5 PIÈCE(S)
4 CHAMBRE(S)
1 330,00 m²
172,00 m²

Commentaires du conseiller

Construction HPE Haute performance énergétique DPE A 172 m2 - Garages Carport Piscine hors sol - Terrain 1300m2
Le cabinet Huchet vous présente cette maison contemporaine construite en 2021 dans le respect d'une démarche de très haute qualité environnementale. Faible consommation énergétique grâce à la performance et qualité des matériaux utilisés - Ossature bois - Bardage en bois naturel en Red Cedar - Isolation en ouate de cellulose et fibre de bois Menuiseries PVC capotage aluminium triple vitrage Brises soleils orientables et volets roulants en aluminium motorisés VMC double flux Chauffe-eau thermodynamique - Poêle à pellets.
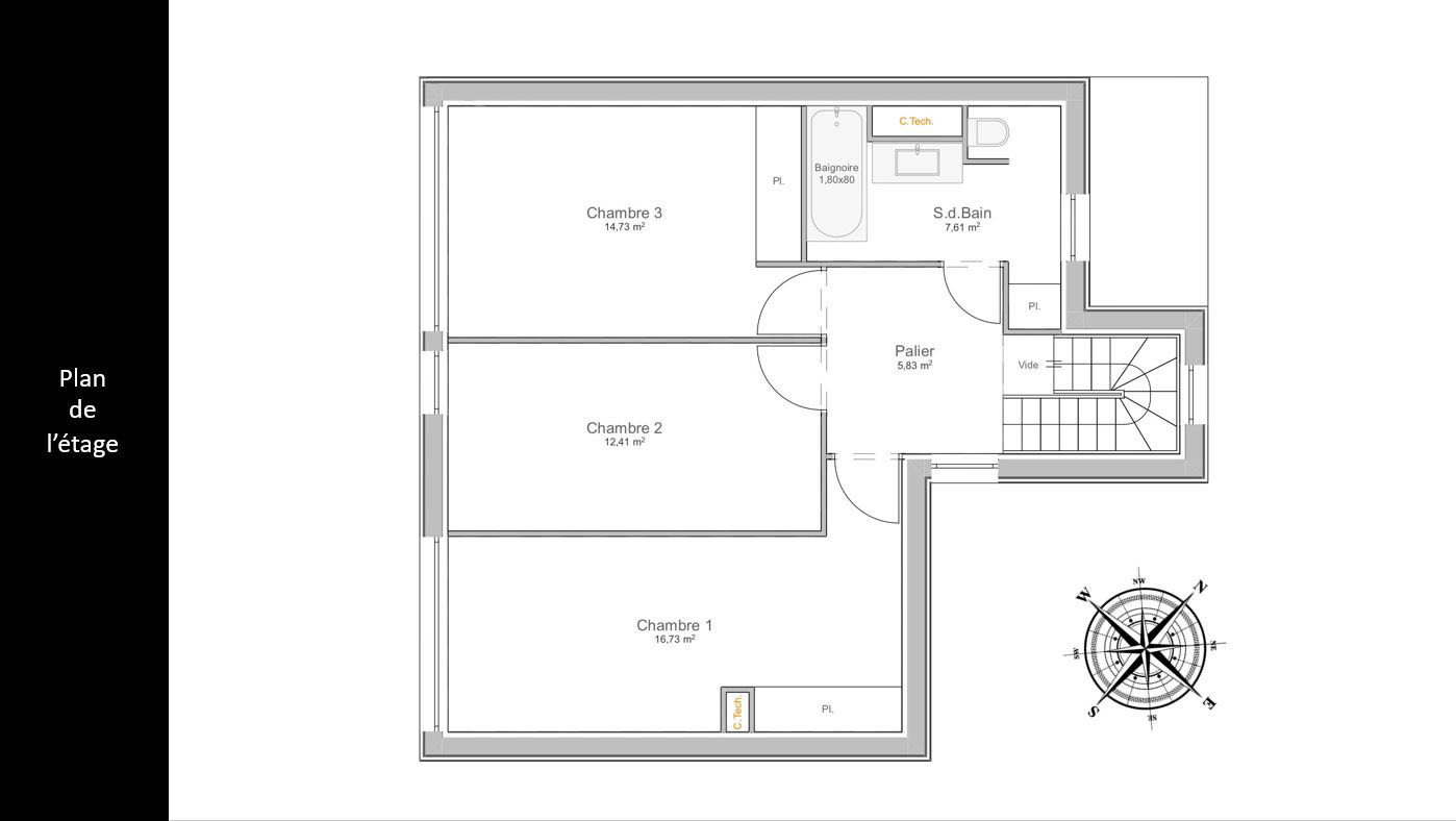
Venez découvrir cette maison très lumineuse située à Esquay-Notre-Dame dans un environnement calme et avec une vue sur la vallée. Vous y découvrirez, au rez-de-chaussée, une vie de plain-pied comprenant : - une entrée avec placard, - une pièce de vie d'environ 70 m2 composée d'une cuisine très moderne, aménagée et équipée ouverte sur un espace salon et salle à manger, - une suite parentale de 22 m2 composée d'une chambre, d'un dressing aménagé et d'une salle d'eau, - un WC indépendant, - une buanderie avec accès au garage. A l'étage, se trouvent : - un palier, - Trois chambres dont deux avec placards, - une salle de bain avec WC. Un garage isolé et accolé à la maison d'environ 17 m2 avec porte sectionnelle vient compléter ce bien ainsi qu'un carport de 18 m2, un second garage et une piscine hors sol 7.50m x 3m. Vous bénéficiez d'un terrain d'environ 1300 m2 avec une belle vue sur la vallée. Attention, les extérieurs ne sont pas réalisés, le plan de masse présenté en photo est le projet initialement prévu. Reste à prévoir l'entrée de la maison avec le portail pour clôturer le terrain, la terrasse bois de l'entrée et côté piscine, l'aménagement et l'engazonnement du terrain, la pose du liner de la piscine, le pool house, ... Honoraires charge vendeurs

  Général

Référence
:
VMA50001354
Type de bien
:
Maison-Villa

  Superficie

Superficie
:
172,00 m²
Superficie terrain
:
1 330,00 m²

  Plus de détails

Nombre de pièces
:
5 PIÈCE(S)
Nombre de chambres
:
4 CHAMBRE(S)
Nombre de salles de bain
:
1 SDB
Nombre de salles d'eau
:
1
Nombre de WC
:
2
Terrasse
:
OUI
Nombre de parkings
:
2
GES
:
1 - A
DPE
:
56 - A

  Financier

Prix
:
510 000 €
Honoraires à la charge
:
du vendeur
Ce bien vous intéresse? CONTACTER notre agence
Recevoir les annonces similaires et les suggestions personnalisées
Je reconnais avoir lu et accepté sans réserve, les Conditions Générales d'Utilisation du site *
Cabinet HUCHET vous réserve le droit d'accès, de modification et de suppression des données vous concernant
(art. 34 de la loi "Informatique et Libertés" du 6 janvier 1978).
Pour l'exercer, vous pouvez vous adresser à cabinet.huchet@cabinethuchet.fr