Vente Maison-Villa - Clécy

750 000 € *
15 PIÈCE(S)
12 CHAMBRE(S)
9 584,00 m²
644,00 m²

Commentaires du conseiller

En exclusivité Domaine d'exception au coeur de la Suisse Normande, Clécy
Situé dans l'un des plus beaux paysages de Normandie, ce magnifique domaine de plus d'1 hectare offre un cadre unique entre nature préservée et confort moderne.
Le domaine se compose de plusieurs bâtiments au charme de l'ancien et aux volumes généreux :
- Maison principale de 245 m2 comprenant 7 pièces principales, 2 chambres avec potentiel d'en créer 3 à 4 autres, 3 salles d'eau, un grand bureau, un garage. DPE E Chauffage fuel
- Grand gîte de 300 m2 comprenant un séjour avec cuisine ouverte, salle de réception, une salle de jeux, 4/5 chambres, dortoir, 3 salles d'eau, un grenier aménageable en chambres ou dortoirs. DPE D chauffage électrique.
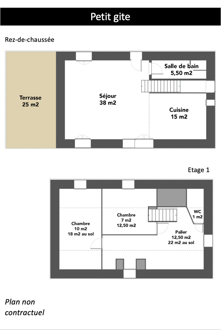
- Petit gîte de 90 m2 comprenant un séjour avec cuisine ouverte, 2 chambres, salle d'eau et belle terrasse couverte. DPE F chauffage électrique et poêle à bois.
- Grande bâtisse à rénover de 100 m2 au sol, offrant un beau potentiel d'aménagement supplémentaire.
Pour vos moments de détente, vous profiterez d'une piscine couverte et chauffée, permettant une utilisation toute l'année. Le tout est niché dans un environnement verdoyant et paisible, typique de la Suisse Normande, avec ses vallées, ses falaises et ses rivières.
Un lieu idéal pour une grande famille, un projet de chambres d'hôtes, de gîtes ou un investissement touristique. Situé dans l'un des secteurs les plus touristiques de Normandie (activités nautiques, randonnées, parapente), ce domaine est parfaitement adapté pour développer une activité d'hébergement touristique rentable ou un projet de séminaires/événementiel.
Un investissement clé en main avec fort potentiel de développement
Un bien rare, conjuguant authenticité, volumes et multiples possibilités d'exploitation.

  Général

Référence
:
VMA50001926
Type de bien
:
Maison-Villa
Code postal
:
14570
Ville
:
Clécy

  Superficie

Superficie
:
644,00 m²
Superficie terrain
:
9 584,00 m²

  Plus de détails

Nombre de pièces
:
15 PIÈCE(S)
Nombre de chambres
:
12 CHAMBRE(S)
GES
:
61 - E
DPE
:
201 - D

  Financier

Prix
:
750 000 €
Honoraires à la charge
:
du vendeur
Ce bien vous intéresse? CONTACTER notre agence
Recevoir les annonces similaires et les suggestions personnalisées
Je reconnais avoir lu et accepté sans réserve, les Conditions Générales d'Utilisation du site *
Cabinet HUCHET vous réserve le droit d'accès, de modification et de suppression des données vous concernant
(art. 34 de la loi "Informatique et Libertés" du 6 janvier 1978).
Pour l'exercer, vous pouvez vous adresser à cabinet.huchet@cabinethuchet.fr