Vente Maison-Villa - Ifs

435 000 € *
7 PIÈCE(S)
5 CHAMBRE(S)
694,00 m²
162,00 m²

Commentaires du conseiller

Maison de famille de 162 m2 (180 m2 au sol) dont appartement de 28,50 m2
Découvrez en exclusivité une charmante maison individuelle de 162 m2 sur une parcelle de 694 m2 située à IFS, secteur calme (impasse) et recherché, à proximité de toutes commodités.
Ses atouts : Pièce de vie traversante - Exposition Sud ouest - Jardin clos et sans vis-à-vis - Garage et places de parking - Vie de plain-pied - Appartement avec accès indépendant et accès de la maison via le garage
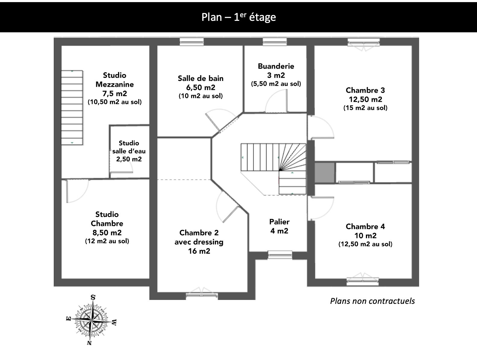
La maison se compose ainsi - au rez-de-chaussée : entrée donnant sur séjour traversant avec poêle à bois (salon/salle à manger), cuisine ouverte et accès terrasse extérieure, chambre, salle d'eau et WC séparé; - A l'étage : palier, chambre avec dressing, deux chambres avec placards, grande salle de bain avec WC, buanderie.
Vous retrouverez également un appartement attenant au garage avec une pièce de vie au rez-de-chaussée et à l'étage : un palier/mezzanine donnant sur une salle d'eau avec WC et une chambre. Ce studio est actuellement loué meublé 500EUR/mois en bail étudiant (préavis d'un mois).
Garage et places de parking extérieure.
Chauffage individuel électrique et poêle à bois - Menuiseries PVC double vitrage avec volets roulants électriques - Installation électrique sans anomalie.
Honoraires charges vendeur.

  Général

Référence
:
VMA50002308
Type de bien
:
Maison-Villa
Code postal
:
14123
Ville
:
Ifs

  Superficie

Superficie
:
162,00 m²
Superficie terrain
:
694,00 m²

  Plus de détails

Nombre de pièces
:
7 PIÈCE(S)
Nombre de chambres
:
5 CHAMBRE(S)
Nombre de salles de bain
:
1 SDB
Nombre de salles d'eau
:
2
Nombre de WC
:
2
Terrasse
:
OUI
Nombre de parkings
:
3
GES
:
5 - A
DPE
:
159 - C

  Financier

Prix
:
435 000 €
Honoraires à la charge
:
du vendeur
Ce bien vous intéresse? CONTACTER notre agence
Recevoir les annonces similaires et les suggestions personnalisées
Je reconnais avoir lu et accepté sans réserve, les Conditions Générales d'Utilisation du site *
Cabinet HUCHET vous réserve le droit d'accès, de modification et de suppression des données vous concernant
(art. 34 de la loi "Informatique et Libertés" du 6 janvier 1978).
Pour l'exercer, vous pouvez vous adresser à cabinet.huchet@cabinethuchet.fr