Vente Maison-Villa - Ifs
446 250 € *
7 PIÈCE(S)
5 CHAMBRE(S)
694,00 m²
162,00 m²
Commentaires du conseiller
Général
Référence
:
VMA50002308
Type de bien
:
Maison-Villa
Code postal
:
14123
Ville
:
Ifs
Superficie
Superficie
:
162,00 m²
Superficie terrain
:
694,00 m²
Plus de détails
Nombre de pièces
:
7 PIÈCE(S)
Nombre de chambres
:
5 CHAMBRE(S)
Nombre de salles de bain
:
1 SDB
Nombre de salles d'eau
:
2
Nombre de WC
:
2
Terrasse
:
OUI
Nombre de parkings
:
3
GES
:
5 - A
DPE
:
186 - D
Financier
Prix
:
446 250 €
Honoraires à la charge
:
du vendeur
Ses atouts : Pièce de vie traversante - Exposition Sud ouest - Jardin clos et sans vis-à-vis - Garage et places de parking - Vie de plain-pied - Studio
La maison se compose ainsi, au rez-de-chaussée : Une entrée donnant sur un séjour traversant avec poêle à bois (salon/salle à manger), cuisine ouverte et accès terrasse extérieure - une chambre - une salle d'eau et un WC
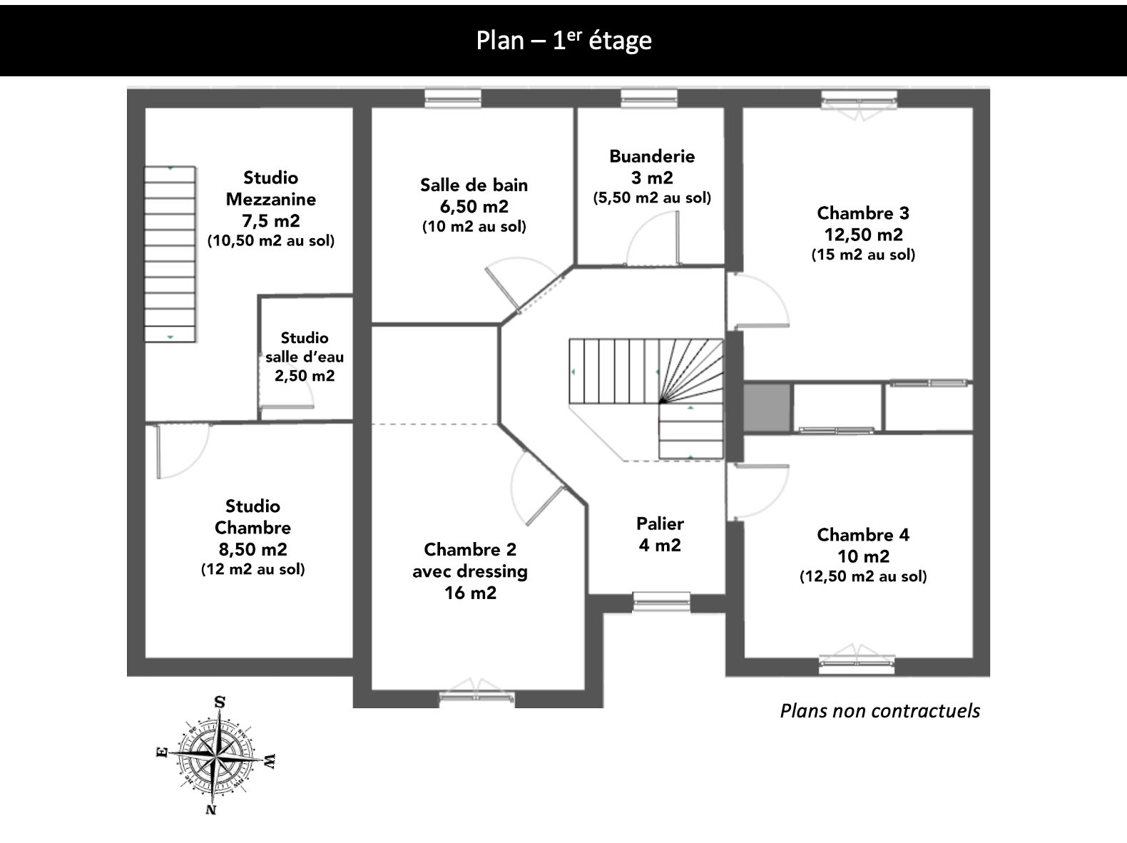
A l'étage : un grand palier desservant trois chambres avec placards dont une avec dressing - une salle de bain avec WC - une buanderie.
Vous retrouverez également un studio indépendant attenant au garage (possibilité de louer) avec une pièce de vie au rez-de-chaussée et à l'étage : un palier/mezzanine donnant sur une salle d'eau avec WC et une chambre.
Chauffage individuel électrique et poêle à bois - Menuiseries PVC double vitrage avec volets roulants électriques - Installation électrique sans anomalie.
Honoraires charges vendeur.